zurück zur vorherigen Seite

S+O Stadtumbau + Ortserneuerung

Präsentation der Entwürfe für die Waldsiedlung Speyer-Nord in der Stadthalle Speyer

Bauen in Nachbarschaften! Wie geht man mit dem Siedlungsbestand der 50er und 60er Jahre um?

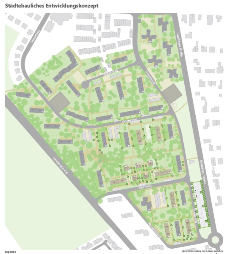
Die Studierenden im Modul „Projekt Konzepte“ am Fachgebiet S+O entwarfen Ideen für die Entwicklung der Waldsiedlung aus den 1960er- und 1970er-Jahren in Speyer-Nord. Die Ergebnisse dieses Kooperationsprojektes zwischen der GEWO Wohnen GmbH und der TU Kaiserslautern wurden am 20. August 2020 ab 18 Uhr in der Stadthalle Speyer der Oberbürgermeisterin, der Geschäftsführung und dem Aufsichtsrat der GEWO Wohnen GmbH, sowie einer ausgewählten Fachöffentlichkeit vorgestellt.

Bauen in Nachbarschaft

Die Studierenden haben die aktuelle Situation in der Waldsiedlung genau aufgenommen und analysiert. Neben den Ergebnissen der Bestandsaufnahme vor Ort und der Auswertung von Archivmaterial und Gebäudekennwerten spielten auch Gespräche mit Expertinnen und Experten für dieses Stadtquartier in die Bewertung mithinein. Darauf aufbauend entwerfen die Studierenden eine Vielzahl von Maßnahmen, die in städtebauliche Entwicklungskonzepte zusammengeführt wurden. Jede Gruppe wählte für sich unterschiedliche Schwerpunkte und Bereiche für ihre Entwürfe. Von dem Umgang mit Lärm über Mobilitätskonzepte bis hin zu behutsamen Anbauten an den Bestand bis hin zum Abriss alter Gebäude und dem Vorschlag für neuen Wohnungsbau reichten die Vorschläge. Es entstanden so eine Vielzahl von sehr guten Entwurfsideen für das Quartier.

Diese wurden im Rahmen einer Abschlusspräsentation am 20. August 2020 in der Stadthalle Speyer vorgestellt. Die anwesenden Aufsichtsräte der GEWO Wohnen GmbH, die Oberbürgermeisterin der Stadt Speyer, sowie Gastkritiker Dr. Bernd Hunger vom Kompetenzzentrum Großsiedlungen e.V. lobten die Arbeiten der Studierenden. Besonders der behutsame Umgang mit den bestehenden Nachbarschaften und dem sozialen Gefüge im Quartier wurde als Stärke der Entwicklungskonzepte herausgestellt sowie die durchgehende Würdigung der bestehenden großzügigen Freiräume.

Für die GEWO Wohnen GmbH sind die Ergebnisse eine wertvolle Hilfestellung bei der weiteren Bewirtschaftung und Modernisierung der Waldsiedlung.

Info

Modul

Projekt Konzepte im Bachelorstudium Raumplanung
Kooperation mit der GEWO Wohnen GmbH (Speyer/Rheinland-Pfalz)

Betreuung

Prof. Dr.-Ing. Holger Schmidt, Dipl.-Ing. Ragna Körby, Thomas Münchow, Viktor Warzecha

Teilnehmende

19 Studierende des vierten Semesters im Bachelorstudiengang Raumplanung