zurück zur vorherigen Seite

S+O Stadtumbau + Ortserneuerung

Gartenstadt Laubusch - Kolonie Erika (2020-2021)

Im Sommersemester 2020 entwickelten acht Studentinnen erfolgreich ein Konzept zur städtebaulichen Wiederbelebung und Transformation der Gartenstadt ins 21. Jahrhundert am Beispiel der Kolonie Erika. Das Projekt fand als Kooperation zwischen S+O und dem Projektbüro „Lausitzer Gartenstadt 2030“sowie der Stadtverwaltung Lauta statt. Für eine weitere wissenschaftliche Begleitung des Projektes wurde die Kooperationsvereinbarung um ein Jahr verlängert.

Ziel der weiteren Zusammenarbeit war es, dass künftig ein tragfähiges Nutzungskonzept für das Kulturhaus erstellt werden kann. Dazu hat S+O vorbereitende Untersuchungen durchgeführt.

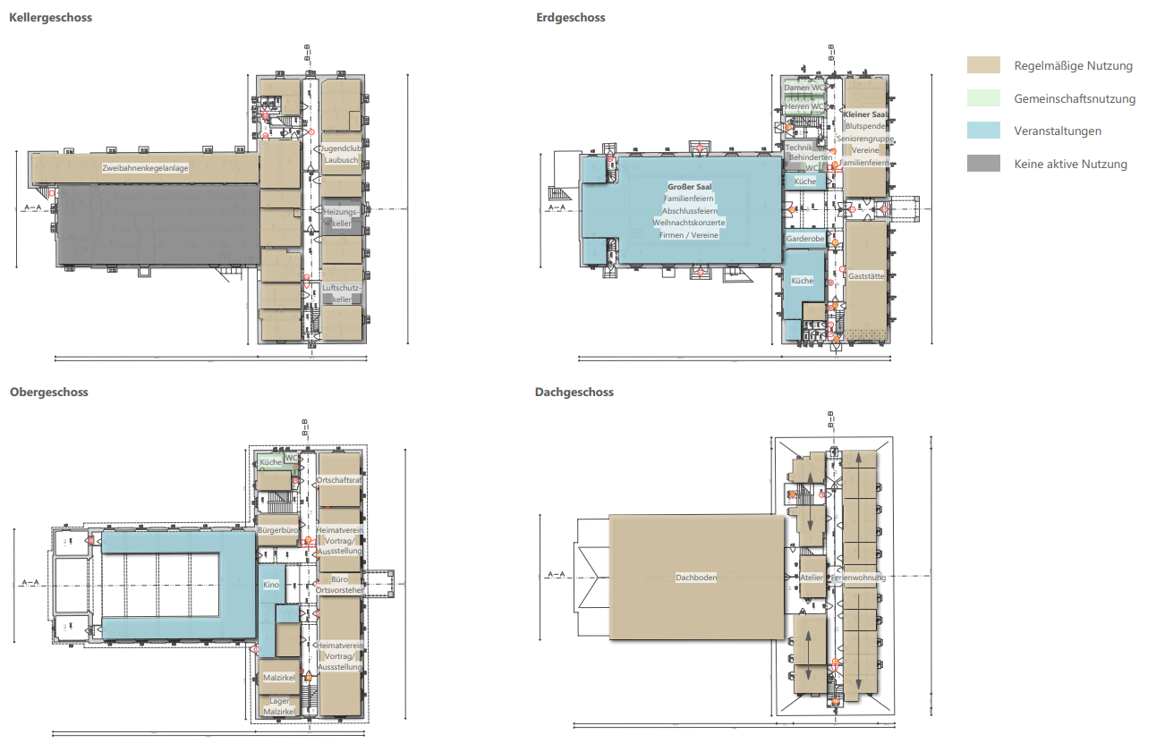
Das Kulturhaus, welches zu dem Ensemble in der Mitte der Kolonie gehört, ist ein besonders bedeutsames Gebäude. Es wurde 1932 als Gaststätte „Erika“ eröffnet und war vor allem zu DDR-Zeiten sehr belebt. Das Gebäude erstreckt sich über vier Etagen. Momentan kann der große und der kleine Saal im Erdgeschoss angemietet werden. Zudem werden verschiedene Räumlichkeiten im Obergeschoss von ortsansässigen Vereinen, dem Bürgerbüro und der Ortsvorsteherin genutzt. Die übrigen Räume im Erd- und Obergeschoss sowie das Keller- und Dachgeschoss werden derzeit nicht genutzt und stehen leer. In verschiedenen Bereichen des Kulturhauses besteht Sanierungsbedarf. Hierzu hat die Stadt Lauta bereits eine Kostenschätzung erstellen lassen. Außerdem wurde bereits eine brandschutztechnische Sanierung mit Hilfe von Städtebaufördergeldern durchgeführt.



Im Rahmen der Kooperation wurden verschiedene Themen im Zusammenhang mit dem Kulturhaus seitens S+O erarbeitet. Bestandteil war die Analyse der aktuellen finanziellen Situation und die Aufstellung von Varianten zur Einnahmensteigerung. Zudem wurde eine Stellungnahme bezüglich der Kostenschätzung abgegeben.

Ein weiterer wichtiger Schritt war die Aufstellung von drei Varianten zum Umgang mit dem Kulturhaus sowie die Recherche nach vergleichbaren Referenzobjekten. Eine nicht zu befürwortende Variante stellt der Abriss dar. Variante zwei beschreibt eine Umnutzung des Objekts und Variante drei die Sanierung und Nutzung als dritten Ort und Kulturstätte. Die Recherche wurde mittels Internet und Telefoninterviews durchgeführt. Die positiven Beispiele können als Impuls und Vorbild bei der Entwicklung des Kulturhauses zum Einsatz kommen.

Darüber hinaus wurden der Stadt Lauta verschiedene Hilfsnetzwerke vorgestellt, die insbesondere durch Knowhow-Transfer einen Beitrag zur erfolgreichen Kulturhaussanierung und -nutzung beitragen können. Außerdem wurden Tipps im Hinblick auf die medialen Außenwirkungen unter Zuhilfenahme von positiven Internetauftritten anderer Einrichtungen aufgestellt.

Links

Info

Kooperation

Kooperation mit dem Projektbüro „Lausitzer Gartenstadt 2030“ sowie der Stadtverwaltung Lauta